シンガポールの賃貸物件、居住・投資用不動産を多数ご紹介。シンガポールで投資、移住、駐在、留学をご検討ならフォーランドリアルティネットワーク

フォーランドリアルティネットワーク

【住みやすい都市No.1】シンガポールで日本人にお勧めの賃貸、居住・投資用不動産を多数ご紹介。

【重要】物件価格は2026年4月17日現在の為替相場(1SGD=125.10円)で換算表示

カートを見る

ご滞在先まで送迎します

物件探し、内見はお任せください

現地業者とのサービス比較

シンガポール拠点

シンガポール拠点

Foreland Realty Network
Singapore Pte.Ltd.

9 Raffles Place #58-26,
Republic Plaza,Singapore 048619

日本拠点

日本拠点

フォーランドリアルティ
ネットワークジャパン株式会社

東京都千代田区大手町1-5-1
大手町ファーストスクエア ウエストタワー19階

フィリピン拠点

フィリピン拠点

Foreland Realty Network, Inc.

23F Tower 6789, 6789 Ayala Avenue, 1227 Makati City, Manila

マレーシア提携企業

マレーシア提携企業「Foreland Property Management」オフィス外観

Foreland Property Management Sdn. Bhd.

C-06-01 Menara UMCity,Pusat Komersial Tasik Medini, Persiaran Medini Sentral 1, Bandar Medini Iskandar, 79250 Iskandar Puteri, Johor, Malaysia

マレーシア拠点

Aqua White Home Sdn. Bhd.

28-01 ,Integra Tower ,The Intermark ,348 Jalan Tun Razak , Kuala Lumpur


売買物件シンガポール売買物件 [ 物件詳細情報 ]

10037売買物件No
アウレア (Aurea)

種別(売買)コンドミニアム (2029年完成予定)
エリア CBD周辺
交通情報 サークル線 ニコール・ハイウェイ駅 徒歩8分
イーストウェスト線 ブギス駅 徒歩15分
学校  イートンハウス(2.6km) このはな幼稚園(2.7km)
Coco-RO(3.1km) Eis(E校)(3.8km)
基本情報 総戸数188戸  (45階建て)
タイプ間取り参考価格専有面積お気に入りに追加
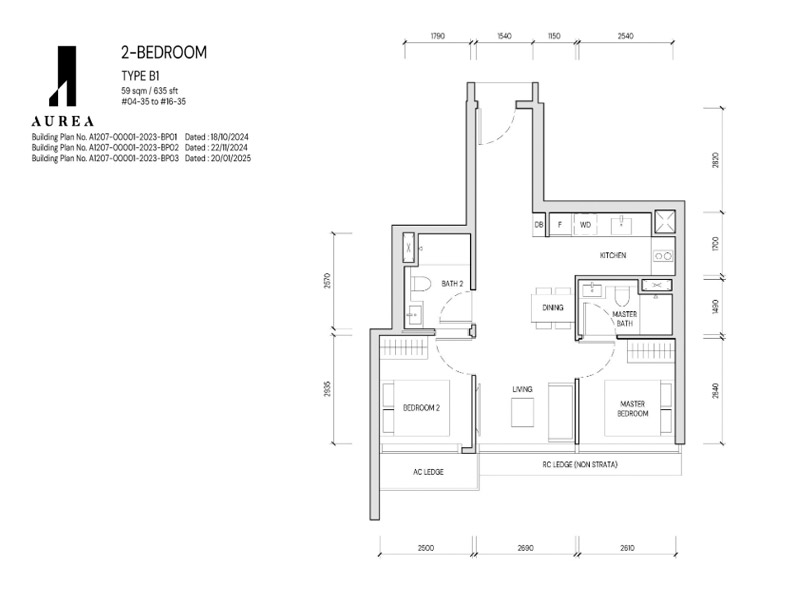
タイプA 2Bed 22,080万円 (1,765,000SGD) 59㎡ (635sqft)
タイプB 3Bed 32,926万円 (2,632,000SGD) 93㎡ (1,001sqft)
タイプC 4Bed 51,041万円 (4,080,000SGD) 134㎡ (1,442sqft)
タイプD 5Bed 121,672万円 (9,726,000SGD) 266㎡ (2,863sqft)
※実際の価格は、階数や諸条件などにより上下します。詳細はお問い合わせください。
Pocket

             
所在地 802 Beach Road, Singapore
開発会社 Far East Organization & Perennial Holdings
設備・条件学校近い、病院近い、プール、ジム、スパ、ガーデン、クラブハウス、先行販売、ラウンジ、ダイニングルームなど
コメント

「Aurea(アウレア)」は、シンガポール中心部のカラン地区を通るビーチロード沿いにて進む、歴史的な複合施設「ゴールデン・マイル・コンプレックス」の再開発プロジェクトの一環として、2029年に誕生を予定している、45階建て、全188戸からなる高級コンドミニアム(マンション)です。


本プロジェクトは、シンガポール最大級の規模を誇る不動産開発会社「ファーイースト・オーガニゼーション」と、複合開発に強みを持つ同大手「ペレニアル・ホールディングス」が共同で推進するもの。1973年に完成したシンガポール初の複合施設「ゴールデン・マイル・コンプレックス」を増改築し、オフィススペース、メディカルスイーツ、リテールスペースが一体となった22階建ての新複合施設「ゴールデン・マイル」へと生まれ変わらせると共に、その隣接地に新たに住宅棟「アウレア」を開発する計画で、エリアの新たなアイコンとなることが期待されています。


開発地となるカラン地区は、CBD(ビジネス中心地)や繁華街「オーチャード」へのアクセス性に優れたエリアであり、本物件から両エリアまで車なら10分前後、最寄り駅となるMRTサークル線「ニコル・ハイウェイ駅」からもそれぞれ15分前後で移動することができます。


また、物件周辺には人気商業施設が数多く立地。車で5分前後の範囲内に、国内最大級の規模を誇る「サンテック・シティ・モール」、シンガポール国立競技場と隣接する「カラン・ウェーブ・モール」、若者で賑わう「ブギス・ジャンクション」、高級店が充実した「ラッフルズ・シティ」などが集積しており、多様なニーズに対応できる生活利便性の高さも魅力です。


さらに、本物件はマリーナ沿いに位置し、視界が開けていることから、伸びやかなパノラマビューを堪能することが可能。CBDエリアの摩天楼はもちろんのこと、マリーナ越しにランドマークタワー「マリーナ・ベイ・サンズ」、夜のライトアップが美しい「ガーデンズ・バイ・ザ・ベイ」や「シンガポール国立競技場」なども眺望することができます。


ご興味をお持ちの方は、まずはお気軽にお問い合わせください。

Pocket

ページの先頭へ