シンガポールの賃貸物件、居住・投資用不動産を多数ご紹介。シンガポールで投資、移住、駐在、留学をご検討ならフォーランドリアルティネットワーク

フォーランドリアルティネットワーク

【住みやすい都市No.1】シンガポールで日本人にお勧めの賃貸、居住・投資用不動産を多数ご紹介。

【重要】物件価格は2026年4月17日現在の為替相場(1SGD=125.10円)で換算表示

カートを見る

ご滞在先まで送迎します

物件探し、内見はお任せください

現地業者とのサービス比較

シンガポール拠点

シンガポール拠点

Foreland Realty Network
Singapore Pte.Ltd.

9 Raffles Place #58-26,
Republic Plaza,Singapore 048619

日本拠点

日本拠点

フォーランドリアルティ
ネットワークジャパン株式会社

東京都千代田区大手町1-5-1
大手町ファーストスクエア ウエストタワー19階

フィリピン拠点

フィリピン拠点

Foreland Realty Network, Inc.

23F Tower 6789, 6789 Ayala Avenue, 1227 Makati City, Manila

マレーシア提携企業

マレーシア提携企業「Foreland Property Management」オフィス外観

Foreland Property Management Sdn. Bhd.

C-06-01 Menara UMCity,Pusat Komersial Tasik Medini, Persiaran Medini Sentral 1, Bandar Medini Iskandar, 79250 Iskandar Puteri, Johor, Malaysia

マレーシア拠点

Aqua White Home Sdn. Bhd.

28-01 ,Integra Tower ,The Intermark ,348 Jalan Tun Razak , Kuala Lumpur


賃貸物件シンガポール賃貸物件 [ 物件詳細情報 ]

0340賃貸物件No
リードン グリーン (Leedon Green)

種別(賃貸)コンドミニアム (2024年完成)
エリア オーチャード周辺
交通情報 サークル線 ファーラー・ロード駅 徒歩12分
サークル線 ホーランド・ビレッジ駅 徒歩15分
学校  タングリン トラスト(2.0km) イートンハウス(2.6km)
ドーバー コート(2.7km) ユナイテッド(DC)(3.0km)
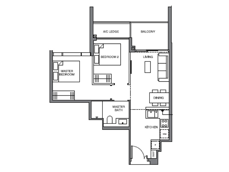
基本情報 総戸数638戸  (12階建て)
タイプ間取り参考価格専有面積お気に入りに追加
タイプA 1Bed 48万円 (3,800SGD) 44㎡ (474sqft)
タイプB 2Bed 56万円 (4,500SGD) 66㎡ (710sqft)
タイプC 3Bed 94万円 (7,500SGD) 97㎡ (1,044sqft)
※実際の価格は、階数や諸条件などにより上下します。詳細はお問い合わせください。
Pocket

             
所在地 38 Leedon Heights
開発会社 Asia Radiant Pte. Ltd.
設備・条件学校近い、病院近い、プール、ジム、スパ、ジャグジー、プレイグラウンド、テニスコート、BBQエリア、セキュリティゲート、芝生エリア、グランドダイニングルーム、ウォーターラウンジ、スカイテラスバーなど
コメント

▼世界文化遺産「シンガポール植物園」にほど近い落ち着きのある住宅街。

▼お洒落な飲食店が多く集まる「ホーランド・ビレッジ」が直線800m圏内。

▼国内最大の繁華街「オーチャード」まで車で約10分。

Pocket

ページの先頭へ